• Work
  • News
  • About
  • Awards
  • Publications
  • Partners
  • Jobs
  • Contact
ateliercetrei
  • Work
  • News
  • About
  • Awards
  • Publications
  • Partners
  • Jobs
  • Contact

sofiaman

The Weiss Palace is a historic building in the center of Timisoara, in Piața Victoriei, built in 1921 by the Arnold Merbl firm in an eclectic style for the Weiss family, according to the plans of Adalbert Szladek. The pediment was redesigned by the architect László Székely.

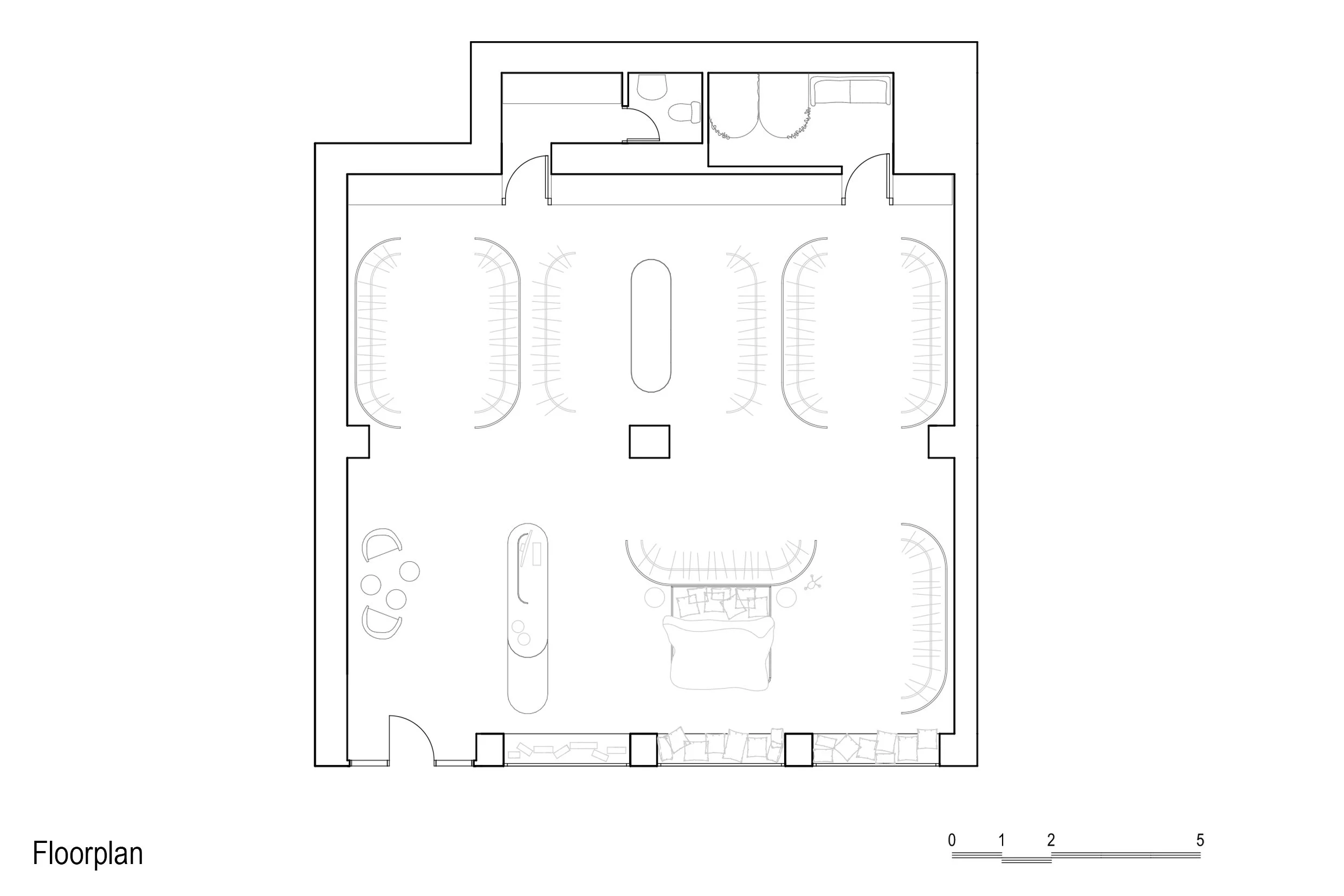
Our proposal for this loungewear and underwear concept store was driven by the company’s ethos: comfort and rest. Thinking of rest we went back to the ancient and wise Sandman as well as to Sleep himself... But not the Sleep one normally imagines.… 'like a breeze, with angelic wings?' Rather as imagined by Victoria Patrascu and drawn by Agnes Keszeg, 'big, round and fat. As soft as cake's dough. With an oval head and two small eyes, with poppy flowers, linden and verbena locks in stead of hair. When he appears, a sweet smell of sandalwood lemming fills the space, much like the smell of an old shady closet filled with freshly ironed linen.' As such our proposal divides the space in different dream worlds separated by textile curtains that are big, round and soft... features borrowed by the custom made furniture pieces as well as by the catalogue ones... Moreover our project addresses the visual as well as the tactile and olfactive senses trying to induce a state of comfort and rest from the moment one crosses the threshold of the store.

Design Team: Paul-Mihai Moldovan, Anamaria Moldovan, Anamaria Lazar, Gloria Gagu

Collaborator[s]:

Design Year: 2022

Status: Competition

Execution | Completion Year: -

Location: Timisoara, Romania

Gross area:

General Contractor:

Text: ateliercetrei

Photographer[s]: -

S.C3.121.00.jpg
S.C3.121.00.jpg
S.C3.121.01.jpg
S.C3.121.02.jpg
S.C3.121.03.jpg
S.C3.121.06.jpg
S.C3.121.04.jpg
S.C3.121.07.jpg
S.C3.121.08.jpg
S.C3.121.09.jpg
S.C3.121.10.jpg
S.C3.121.11.jpg